Scheda dettagli

Casa Schiera-Bifamiliare a Follina

rif. PVS092

€ 80.000
155 mq
2 camere
3 bagni

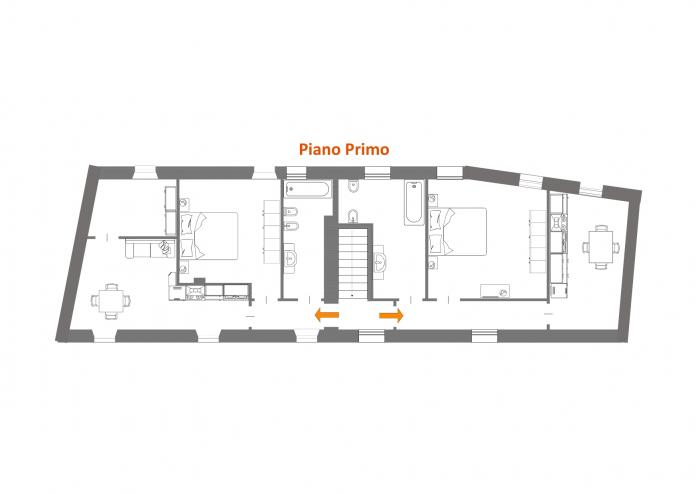
FOLLINA – VALMARENO - Nel cuore del centro storico, proponiamo in vendita porzione di casa a schiera da ristrutturare, con piccolo spazio scoperto di proprietà, ideale per chi desidera personalizzare gli ambienti o realizzare un investimento immobiliare.
L’immobile si sviluppa su più livelli ed è così composto:
Al piano terra ingresso con ampio magazzino, con possibilità di conversione in garage, funzionale cantina e vano scala che conduce al piano superiore.
Al primo piano la proprietà è attualmente suddivisa in due appartamenti:
• Primo appartamento: ingresso, luminosa cucina, accogliente zona giorno, bagno finestrato dotato di vasca, camera da letto matrimoniale e piccolo studio.
• Secondo appartamento: ingresso, zona giorno open-space, comoda camera da letto matrimoniale e bagno finestrato.
Completa la proprietà un piccolo spazio scoperto privato di circa 90 mq, utile come area esterna.
L’immobile necessita di interventi di ristrutturazione, offrendo così l’opportunità di ridistribuire e valorizzare gli spazi secondo le proprie esigenze, sia per uso abitativo che come soluzione da mettere a reddito.
Per maggiori informazioni o per fissare una visita, non esitate a contattarci.

CONTATTO DIRETTO 0438/686612 SEDE DI PIEVE DI SOLIGO
Si precisa che gli indirizzi presenti negli annunci non sono identificativi dell'ubicazione esatta dell'immobile, danno un riferimento solo generico della zona al cliente che ricerca, al fine di tutelare la riservatezza e la privacy del venditore.
Ti ricordiamo che attualmente abbiamo tre sedi nei comuni di Fontanelle, Pieve di Soligo e Santa Lucia di Piave e seguiamo tutta l’area geografica limitrofa: puoi visionare altre proposte di immobili ad uso residenziale, industriale, commerciale direttamente sul nostro sito e rimanere aggiornato con i nostri social.

altre informazioni sull'immobile   
TIPOLOGIA: Vendita
ZONA: Valmareno
DISPONIBILITA': Da concordare
STATO IMMOBILE: Da ristrutturare
ANNO RESTAURAZIONE: 1970
UNITA' IMMOBILIARI: 2
PIANO IMMOBILE: Più livelli
TOTALE PIANI STABILE: Più livelli piu_livelli
CANTINA: Si , 18 mq.
GIARDINO: Si, 90 mq.
TIPO RISCALDAMENTO: Autonomo
CLASSE ENERGETICA: In fase di richiesta
PAVIMENTO REPARTO GIORNO: Piastrelle
PAVIMENTO REPARTO NOTTE: Piastrelle
SERRAMENTI: Scuri
ISOLAMENTO SERRAMENTI: Vetrocamera

Per info: 0438 686612

Ti contattiamo noi

Vieni a trovarci

Trova la tua casa

News

19/05/2026

Una casa ipotecata si può vendere?

05/05/2026

Ipoteca giudiziale: come funziona e quando può essere iscritta

Immobili correlati

Casa Schiera-Bifamiliare
a Santa Lucia di Piave

€ 465.000
  • 162 mq

  • 3

  • 4

Casa Schiera-Bifamiliare
a Vazzola

€ 200.000
  • 400 mq

  • 3

  • 2

Casa Schiera-Bifamiliare
a Vazzola

€ 210.000
  • 211 mq

  • 3

  • 3

Segui Dinamica Immobiliare su

Informativa della legge sulla privacy



In questa pagina descriviamo le modalità di gestione del sito, in riferimento al trattamento dei dati personali degli utenti che lo consultano. Si tratta di un’informativa che è resa anche ai sensi dell'art. 13 del d.lgs. n. 196/2003 - Codice in materia di protezione dei dati personali, a coloro che interagiscono con i servizi web di Dinamica - L'agenzia immobiliare, accessibili per via telematica all’indirizzo: www.immobiliaredinamica.it
L’informativa si ispira anche alla Raccomandazione n. 2/2001 che le autorità europee per la protezione dei dati personali, riunite nel Gruppo istituito dall’art. 29 della direttiva n. 95/46/CE , hanno adottato il 17 maggio 2001 per individuare alcuni requisiti minimi per la raccolta di dati personali on-line e, in particolare, le modalità, i tempi e la natura delle informazioni che i titolari del trattamento devono fornire agli utenti quando questi si collegano a pagine web, indipendentemente dagli scopi del collegamento.

IL "TITOLARE" DEL TRATTAMENTO
A seguito della consultazione di questo sito possono essere trattati dati relativi a persone identificate o identificabili. Il "titolare" del loro trattamento è la società Dinamica - L'agenzia immobiliare, con sede a Santa Lucia di Piave in provincia di Treviso, in Via Distrettuale, 70/B (Italia).

LUOGO DI TRATTAMENTO DEI DATI
I dati raccolti tramite la compilazione di form di contatto vengono utilizzati in base al trattamento previsto dalla leggeI trattamenti connessi ai servizi web di questo sito hanno luogo presso la predetta sede della società e sono curati solo da personale autorizzato, o da eventuali incaricati di occasionali operazioni di manutenzione.
Nessun dato derivante dal servizio web viene comunicato o diffuso.
I dati personali forniti dagli utenti che inoltrano richieste di invio di materiale informativo (mailing list, newsletter, risposte a quesiti, ecc.) sono utilizzati al solo fine di eseguire il servizio o la prestazione richiesta e non sono comunicate a terzi.

TIPI DI DATI TRATTATI
Dati di navigazione.
I sistemi informatici e le procedure software preposte al funzionamento di questo sito web acquisiscono, nel corso del loro normale esercizio, alcuni dati personali la cui trasmissione è implicita nell'uso dei protocolli di comunicazione di Internet. Si tratta di informazioni che non sono raccolte per essere associate a interessati identificati, ma che per loro stessa natura potrebbero, attraverso elaborazioni ed associazioni con dati detenuti da terzi, permettere di identificare gli utenti. In questa categoria di dati rientrano gli indirizzi IP o i nomi a dominio dei computer utilizzati dagli utenti che si connettono al sito, gli indirizzi in notazione URI (Uniform Resource Identifier) delle risorse richieste, l'orario della richiesta, il metodo utilizzato nel sottoporre la richiesta al server, la dimensione del file ottenuto in risposta, il codice numerico indicante lo stato della risposta data dal server (buon fine, errore, ecc.) ed altri parametri relativi al sistema operativo e all'ambiente informaticodell'utente. Questi dati vengono utilizzati al solo fine di ricavare informazioni statistiche anonime sull'uso del sito e per controllarne il corretto funzionamento e vengono cancellati immediatamente dopo l'elaborazione. I dati potrebbero essere utilizzati per l'accertamento di responsabilità in caso di ipotetici reati informatici ai danni del sito: salva questa eventualità, allo stato i dati sui contatti web non persistono per più di sette giorni.
Dati forniti volontariamente dall'utente.
L'invio facoltativo, esplicito e volontario di posta elettronica agli indirizzi indicati su questo sito comporta la successiva acquisizione dell'indirizzo del mittente, necessario per rispondere alle richieste, nonché degli eventuali altri dati personali inseriti nella missiva. Specifiche informative di sintesi verranno progressivamente riportate o visualizzate nelle pagine del sito predisposte per particolari servizi a richiesta.

COOKIES
Il sito http://www.immobiliaredinamica.it utilizza cookie per fornire servizi che aumentino e migliorino l'efficacia del sito per le attività online degli utenti.

Come utilizziamo i cookie
Utilizziamo cookie di navigazione anonimi, necessari per consentire agli utenti di navigare correttamente su http://www.immobiliaredinamica.it, utilizzare tutte le funzionalità ed accedere ad aree sicure. Utilizziamo cookie analitici per capire meglio come i nostri utenti utilizzano il sito web, per ottimizzare e migliorare il sito, rendendolo sempre interessante e rilevante per gli utenti.
Queste informazioni sono anonime, e utilizzate solo a fini statistici.
Utilizziamo i cookie commerciali anonimi per mostrarti le nostre pubblicità su altri siti web, in base ai prodotti che hai visualizzato nelle navigazioni precedenti. Questi cookie vengono solitamente inseriti da parti terze di fiducia (come Google attraverso il remarketing per la pubblicità display), tuttavia, Dinamica - L'agenzia immobiliare non consente a tali società di raccogliere informazioni personali relative agli utenti. Ciò significa che sarà garantito l'anonimato e i dati personali non verranno usati da altri siti web o database di marketing.

Come modificare o disattivare le preferenze dei cookie
Puoi consentire la registrazione del nome utente e della password in cookies dopo la chiusura della sessione di navigazione e la loro attivazione al momento della visita successiva e puoi revocare questa autorizzazione in ogni momento, con effetti sul futuro, selezionando gli specifici parametri del browser che permettono di escludere l'attivazione dei cookies, con le seguenti modalità:

Mozilla Firefox:
1. Seleziona menu "Strumenti", poi "Opzioni"
2. Clicca su "Privacy"

Microsoft Internet Explorer:
1. Seleziona "Strumenti", poi "Opzioni Internet"
2. Clicca su "Privacy" (o "Riservatezza")
3. Scegli il livello di privacy desiderato utilizzando il cursore.

Chrome:
1. Seleziona "Strumenti", poi "Impostazioni"
2. Clicca su "Mostra impostazioni avanzate"
3. Nella sezione "Privacy", clicca su "Impostazioni contenuti".

Opera:
1. Seleziona "File", poi "Preferenze"
2. Clicca su "Privacy".

I visitatori possono disattivare Google Analytics per la pubblicità display e personalizzare gli annunci della Rete Display di Google utilizzando la Gestione preferenze annunci.
Per disattivare i cookie di parti terze che consentono la personalizzazione della pubblicità in funzione del comportamento sul sito web puoi visitare i siti www.networkadvertising.org e www.youronlinechoices.com per identificare i membri NAI ( (Network Advertising Initiative) che hanno inserito cookie pubblicitari sul tuo computer. Per usufruire della funzione opt-out dal programma di pubblicità comportamentale di un membro NAI o IAB, spunta la casella corrispondente alla compagnia che desideri escludere.

FACOLTATIVITA' DEL CONFERIMENTO DEI DATI
A parte quanto specificato per i dati di navigazione, il conferimento dei dati contrassegnati con asterisco deve ritenersi obbligatorio per consentire l'erogazione dei servizi in oggetto, mentre il conferimento dei restanti dati è facoltativo e dunque la loro mancanza non produrrà alcuna conseguenza.

MODALITA' DEL TRATTAMENTO
I dati personali sono trattati con strumenti automatizzati e non per gli scopi per cui sono stati raccolti. Specifiche misure di sicurezza sono osservate per prevenire la perdita dei dati, usi illeciti o non corretti ed accessi non autorizzati. I dati raccolti, potranno essere utilizzati per conto del titolare del trattamento, dagli amministratori incaricati di svolgere servizi di elaborazione e di corretto svolgimento delle attività del sito.

DIRITTI DEGLI INTERESSATI
I soggetti cui si riferiscono i dati personali hanno il diritto in qualunque momento di ottenere la conferma dell'esistenza o meno dei medesimi dati e di conoscerne il contenuto e l'origine, verificarne l'esattezza o chiederne l'integrazione o l'aggiornamento, oppure la rettificazione (art. 7 del d.lgs. n. 196/2003). Ai sensi del medesimo articolo si ha il diritto di chiedere la cancellazione, la trasformazione in forma anonima o il blocco dei dati trattati in violazione di legge, nonché di opporsi in ogni caso, per motivi legittimi, al loro trattamento. Le richieste vanno rivolte alla società Dinamica - L'agenzia immobiliare all'indirizzo info@immobiliaredinamica.it.

Credits




Dinamica
L'agenzia immobiliare

Via Distrettuale, 70/B - Santa Lucia di Piave (TV)
tel 0438 46.02.39 - fax 0438 46.84.98
info@immobiliaredinamica.it

Agaweb srl Unipersonale
Siti Internet, applicazioni tecnologiche per il Web, consulenza e soluzioni CRM
Via Venezia, 38/F - San Vendemiano (TV)
tel 0438 41.80.94
info@agaweb.it - www.agaweb.it